The Summit at
Drexel University
Figures and Diagrams







Below can bee seen the single line diagram of the electrical system for lancaster square. The two plans are in parrallel with the top floors in the upper diagram and floors 1-11 are shown in the lower diagram. In the lower diagram you can see the distribution where the power enters the building and is distributed to the areas designated. This simply illustrates the general layout of the system, leaving out small details it is a good point for a designer to begin figuring out the type of system that will be used.
PENTHOUSE
11TH FLOOR
RETAILS STORES
BASEMENT
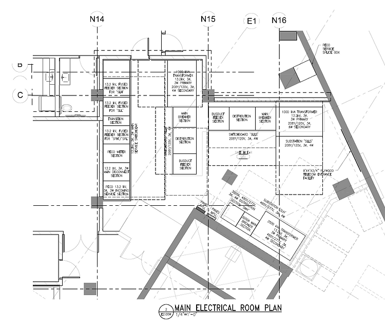
In the diagram below a layout is given to the electical contractor in order to layout the distribution and layout of the elctrical systems within the mechanical substations. This is used to allocate space for the seperate pieces of equipment and layout the systems in a location that makes sense for the distibution to the upper levels. This is helpful for a contractor in design who can determine where placement of systems should be.
Electrical Systems
Lighting Systems


The diagrams below illustrate the electircal layout for the different elements of each floor. This includes the the outlets and the equipment needed to be serviced at each location.
The mezzanine level lighting plan is shown below illustraing a topograpic and section look at the fixtures for the layout as well as the single line diagram distribution of the feeders